All MARKET SEGMENTS OF BUILDINGS
«Free 3D building designer and calculator»
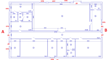
186. Pre-engineered cheese factory 18W x 30L x 4H in the Kanerga village, Russia.
Main currency


CIS
ASIAN
AFRICA
up
?
PK Vesta LLC uses cookies. By continuing to work with pkvesta.com, you acknowledge the use of your browser cookies by the site, which help us make this site more convenient for users. However, you can prevent the storage of certain cookies in your browser settings. The processing of user data is carried out in accordance with: "POLICY REGARDING THE PROCESSING OF PERSONAL DATA IN PK VESTA LLC"
Clear