PK Vesta is an old industrial IT company specializing in online project designing and manufacturing of custom pre-engineered steel buildings for any part of the world. The experienced architects and engineers work in the design team (some since 1980). They often come through the extensive training aimed at better designing and engineering the steel buildings on global markets in full accordance with local and international building codes of Practice (North and South America, Eurasia, the Middle East and Africa). For the first time ever, PK Vesta implemented the revolutionary state-of the-art system WebSteel allowing international customers to price and design the custom steel buildings online for free 24/7.






Designing of prefabricated buildings
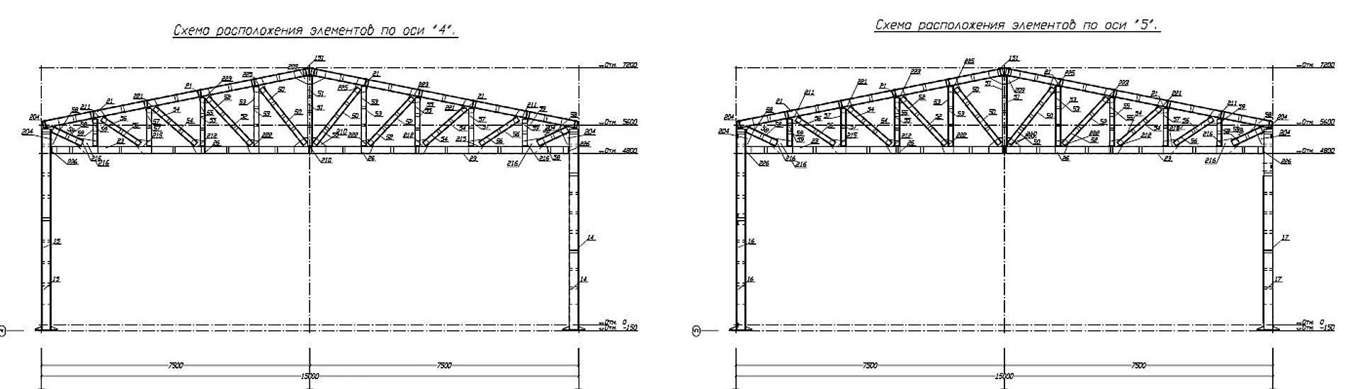
It is the new business model that will radically change the way how customers will be served in construction markets in the near future. WebSteel system is based on unified parametric digital solid modeling (BIM standard), which is capable of automatic coordination of all the corrections made into a 3D model in the scope of building online parameters restrictions. The main function of WebSteel is the online minimization of the specific quantity of metal and thus reaching a decrease in a steel building overall cost. Also, an end customer can freely take advantage of many countries being constantly digitized in WebSteel. FREE drawing package for international clients include the following: 1) Steel framing (columns, trusses, rafters, secondary framing, bolts and ext.), 2) Facades (sandwich panels, fittings, fasteners) and 3) Base (foundations layout, views and sections).



